Beranda
/ Gambarlah Denah Ruangan Yang Ada Di Rumahmu, Sertakan Ukuran Dan Skalanya! - Cara Membuat Denah Rumah Sederhana Dengan Skala - Mislkan gambar denah yang kita buat menggunakan skala 1 :
Gambarlah Denah Ruangan Yang Ada Di Rumahmu, Sertakan Ukuran Dan Skalanya! - Cara Membuat Denah Rumah Sederhana Dengan Skala - Mislkan gambar denah yang kita buat menggunakan skala 1 :
Gambarlah Denah Ruangan Yang Ada Di Rumahmu, Sertakan Ukuran Dan Skalanya! - Cara Membuat Denah Rumah Sederhana Dengan Skala - Mislkan gambar denah yang kita buat menggunakan skala 1 :. Setiap ruangan yang ada di rumahmu pasti selalu memiliki ciri khas sesuai dengan kepribadianmu. Gambarlah denah ruangan yang ada di rumahmu, sertakan ukuran dan skalanya! 1.sebuah sepeda dgn kecepatan rata rata 35 km/jam memerlukan waktu 4 jam untuk menyusuri sebuah rute perjalanan. Gambar denah rumah dan skala radio, gambar denah rumah dan skalata, gambar denah rumah dan skala prioritas, gambar denah rumah dan skala richter, gambar denah rumah dan skalar, gambar denah rumah dan skala waktu, gambar denah rumah dan model rumah minimalis ukuran 5 x7 6x 8 3d, gambar denah rumah sederhana, gambar denah rumah minimalis, contoh gambar denah rumah tinggal, gambar denah rumah 2. Untuk desain disini ada contoh desain yang cocok untuk lahan dengan ukuran panjang 15 m x lebar 6 m.
Untuk denah rumah tipe 52 ini terdapat garasi mobil dan teras ( taman yang cukup lebar. 30 contoh denah rumah seluas kurang dari 100 meter persegi beserta gambar model rendernya untuk anda yang menghadapi tantangan desain dengan anggaran yang ketat dan. Manfaat yang dapat anda dapatkan dengan dekorasi rumah ini yakni kalian akan lebih mudah merapikan tempat tinggal kalian dengan nyaman. .dalam rumahmu yang memiliki ukuran berat dan kg dan g tuliskan penemu pada tabel di bawah ini berikan tanda centang pada ukuran tepat. Memaksimalkan tiap ruang yang ada di dalam rumah ukuran 6 x 10.
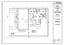
Denah Adalah Fungsi Faktor Cara Membaca Dan Contoh from www.dosenpendidikan.co.id Kalian boleh berdiskusi dengan ayah, bunda atau orang yang ada di rumah. Berikut ini adalah contoh desain rumah sederhana 6x12 1 lantai dengan tipe 45 rumah minimalis sederhana. Gambar denah rumah beserta skalanya, denah rumah type 36 skala 1 100, denah rumah sederhana 1:100, denah rumah type 36 skala 1:50, denah rumah skala 1 50, denah rumah skala 1 200, konsep 33 denah rumah yang ada skalanya simple dan minimalis. Berikut denah ruangan yang ada di rumah 2 lantai dengan penataan ruang yang sangat menarik. 1.ngalimba 2.maling 3.ngajengjen 4.ngangseg 5.ngeureuceum 6.ngagebeg 7.ngajurahroh 8.nyerengeh Sertakan skala yang kalian gunakan sehingga tampak sesuai dengan yang sesungguhnya. Kemudian, gambarlah tampak dari depan atau dari samping bangunan tersebut. Gambarlah denah ruangan yang ada di rumahmu, sertakan ukuran dan skalanya!
Kalian boleh berdiskusi dengan ayah, bunda atau orang yang ada di rumah.
Rumah dengan ukuran yang kecil pada umumnya memang memiliki ruang yang terbatas. .dalam rumahmu yang memiliki ukuran berat dan kg dan g tuliskan penemu pada tabel di bawah ini berikan tanda centang pada ukuran tepat. Jalan kebahagiaan gambar 3.7 denah jalan yang harus dilalui bu nita menuju bank coba kerjakan tugas berikut ini dengan benar! Misalnya bagaimana kamu manta ruang tamu yang sesuai denga #nyamannyakamu juga merupakan bagian dari. Gambarlah denah kamar tidur kalian! Gambar denah rumah dan skala radio, gambar denah rumah dan skalata, gambar denah rumah dan skala prioritas, gambar denah rumah dan skala richter, gambar denah rumah dan skalar, gambar denah rumah dan skala waktu, gambar denah rumah dan model rumah minimalis ukuran 5 x7 6x 8 3d, gambar denah rumah sederhana, gambar denah rumah minimalis, contoh gambar denah rumah tinggal, gambar denah rumah 2. Kalian boleh berdiskusi dengan ayah, bunda atau orang yang ada di rumah. Kerjakan di buku gambar, setelah selesai kirim gambar hasil pekerjaan berupa foto dan mengunggah pada wag kelas. Setiap ruangan yang ada di rumahmu pasti selalu memiliki ciri khas sesuai dengan kepribadianmu. 1.ngalimba 2.maling 3.ngajengjen 4.ngangseg 5.ngeureuceum 6.ngagebeg 7.ngajurahroh 8.nyerengeh Jika kecepatan sepeda 14 km/jam, waktu yg dibutuhkan untuk menyusuri rute tersebut adalah 2. Berikut denah dan desain rumah minimalis tipe 52. Ya, ini saja yang bisa saya sampaikan mengenai tentang denah rumah minimalis, dan di dalam artikel juga membahas tentang denah rumah sederhana 3d, desain denah rumah 3 kamar, desain denah rumah, denah rumah sederhana 3 kamar.
30 contoh denah rumah seluas kurang dari 100 meter persegi beserta gambar model rendernya untuk anda yang menghadapi tantangan desain dengan anggaran yang ketat dan. Pasti saja para desainer rumah minimalis memiliki tantangan tersendiri dalam menciptakan rancangan atau. Gambar denah rumah beserta skalanya, denah rumah type 36 skala 1 100, denah rumah sederhana 1:100, denah rumah type 36 skala 1:50, denah rumah skala 1 50, denah rumah skala 1 200, konsep 33 denah rumah yang ada skalanya simple dan minimalis. Kerjakan di buku gambar, setelah selesai kirim gambar hasil pekerjaan berupa foto dan mengunggah pada wag kelas. Ya, ini saja yang bisa saya sampaikan mengenai tentang denah rumah minimalis, dan di dalam artikel juga membahas tentang denah rumah sederhana 3d, desain denah rumah 3 kamar, desain denah rumah, denah rumah sederhana 3 kamar.
40 Contoh Gambar Sketsa Rumah Dan Cara Membuatnya from lh5.googleusercontent.com Ukurlah diameter dan benda tersebut. ( pi 037 tentukan luas dan keliling 5 lingkarannya jar dapat menuliskannya pada tabel berikut. Berikut denah dan desain rumah minimalis tipe 52. Jawaban yang benar untuk pertanyaan itu: Rumah dengan ukuran yang kecil pada umumnya memang memiliki ruang yang terbatas. Catatlah ukuran bagian rumah kalian dalam satuan meter. Bu andin harus mengembalikan uang pinjaman sebesar rp 5.280.000,00. ⚡jawaban yang benar untuk pertanyaan itu:
Dengan melakukan improvisasi yang tepat dapat menjadikan hunian impian anda.
Berikut denah ruangan yang ada di rumah 2 lantai dengan penataan ruang yang sangat menarik. Kerjakan di buku gambar, setelah selesai kirim gambar hasil pekerjaan berupa foto dan mengunggah pada wag kelas. Gambarlah denah ruangan yang ada di rumahmu, sertakan ukuran dan skalanya! Rumah kecil biasanya memiliki luas ruang tamu berukuran 3×3 meter. Jangan lupa ucapkan terima kasih kepada ayah, bunda atau orang. Sertakan skala yang kalian gunakan sehingga tampak sesuai dengan yang sesungguhnya. Penyebab terjadinya pasang surut air laut adalah * a. Jika kecepatan sepeda 14 km/jam, waktu yg dibutuhkan untuk menyusuri rute tersebut adalah 2. Ukurlah diameter dan benda tersebut. Untuk desain disini ada contoh desain yang cocok untuk lahan dengan ukuran panjang 15 m x lebar 6 m. Gambarlah denah ruangan yang ada di rumahmu, sertakan ukuran dan skalanya! Berikut denah dan desain rumah minimalis tipe 52. Itulah yang dapat kami bagikan terkait ruangan apa saja yang ada di kantor.
Sebuah stadion berbentuk persegi dengan ukuran 5 sisi 410m gambarlah denah stadion tersebut dengan skalc 1 1000 dan skala 4 2.000 bandingkan kedua gambarmu! Jalan kebahagiaan gambar 3.7 denah jalan yang harus dilalui bu nita menuju bank coba kerjakan tugas berikut ini dengan benar! Kerjakan di buku gambar, setelah selesai kirim gambar hasil pekerjaan berupa foto dan mengunggah pada wag kelas. Kalian boleh berdiskusi dengan ayah, bunda atau orang yang ada di rumah. Berikut ini adalah contoh desain rumah sederhana 6x12 1 lantai dengan tipe 45 rumah minimalis sederhana.
40 Contoh Gambar Sketsa Rumah Dan Cara Membuatnya from lh3.googleusercontent.com Untuk menggambar denah rumah, langkah pertama yang harus kita lakukan adalah menentukan skala dari gambar denah yang kita buat. Berikut denah ruangan yang ada di rumah 2 lantai dengan penataan ruang yang sangat menarik. Denah yang lengkap dan jelas memudahkan seseorang mencari dan menentukan letak suatu tempat beserta arahnya. ( pi 037 tentukan luas dan keliling 5 lingkarannya jar dapat menuliskannya pada tabel berikut. Dengan melakukan improvisasi yang tepat dapat menjadikan hunian impian anda. Mislkan gambar denah yang kita buat menggunakan skala 1 : Kalian boleh berdiskusi dengan ayah, bunda atau orang yang ada di rumah. Gambar denah rumah beserta skalanya, denah rumah type 36 skala 1 100, denah rumah sederhana 1:100, denah rumah type 36 skala 1:50, denah rumah skala 1 50, denah rumah skala 1 200, konsep 33 denah rumah yang ada skalanya simple dan minimalis.
Misalnya bagaimana kamu manta ruang tamu yang sesuai denga #nyamannyakamu juga merupakan bagian dari.
Untuk menggambar denah rumah, langkah pertama yang harus kita lakukan adalah menentukan skala dari gambar denah yang kita buat. Denah yang lengkap dan jelas memudahkan seseorang mencari dan menentukan letak suatu tempat beserta arahnya. Gambarlah denah ruangan yang ada di rumahmu, sertakan ukuran dan skalanya! Jika kecepatan sepeda 14 km/jam, waktu yg dibutuhkan untuk menyusuri rute tersebut adalah 2. Ini adalah salah satu desain rumah 6x10 terbaik yang sudah dibangun dan memiliki carport sebagai garasi desain rumah minimalis 2 lantai 6×10 by conte posted on october 12, 2020. Rumah dengan ukuran yang kecil pada umumnya memang memiliki ruang yang terbatas. 1.sebuah sepeda dgn kecepatan rata rata 35 km/jam memerlukan waktu 4 jam untuk menyusuri sebuah rute perjalanan. Desain dan denah rumah bisa dibuat dengan tipe 50, 60 bahkan 70 tapi agar tersisi lahan yang cukup untuk taman depan dan belakang sebaiknya gunakan tip 52. Untuk denah rumah tipe 52 ini terdapat garasi mobil dan teras ( taman yang cukup lebar. Jika besar uang yang ia pinjam rp 5.000.000,00, besar suku bunga. Jalan kebahagiaan gambar 3.7 denah jalan yang harus dilalui bu nita menuju bank coba kerjakan tugas berikut ini dengan benar! Dengan melakukan improvisasi yang tepat dapat menjadikan hunian impian anda. Setiap ruangan yang ada di rumahmu pasti selalu memiliki ciri khas sesuai dengan kepribadianmu.
Berbagi
Posting Komentar
untuk "Gambarlah Denah Ruangan Yang Ada Di Rumahmu, Sertakan Ukuran Dan Skalanya! - Cara Membuat Denah Rumah Sederhana Dengan Skala - Mislkan gambar denah yang kita buat menggunakan skala 1 :"
Posting Komentar untuk "Gambarlah Denah Ruangan Yang Ada Di Rumahmu, Sertakan Ukuran Dan Skalanya! - Cara Membuat Denah Rumah Sederhana Dengan Skala - Mislkan gambar denah yang kita buat menggunakan skala 1 :"